Colectora Panamericana Este 3300 | YSC0324

FICHA

  • Producto Depósito
  • Operación Alquiler
  • Barrio Ricardo Rojas
  • Naves 1
  • Estado Excelente
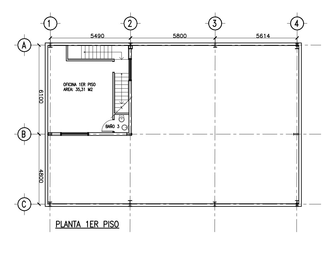
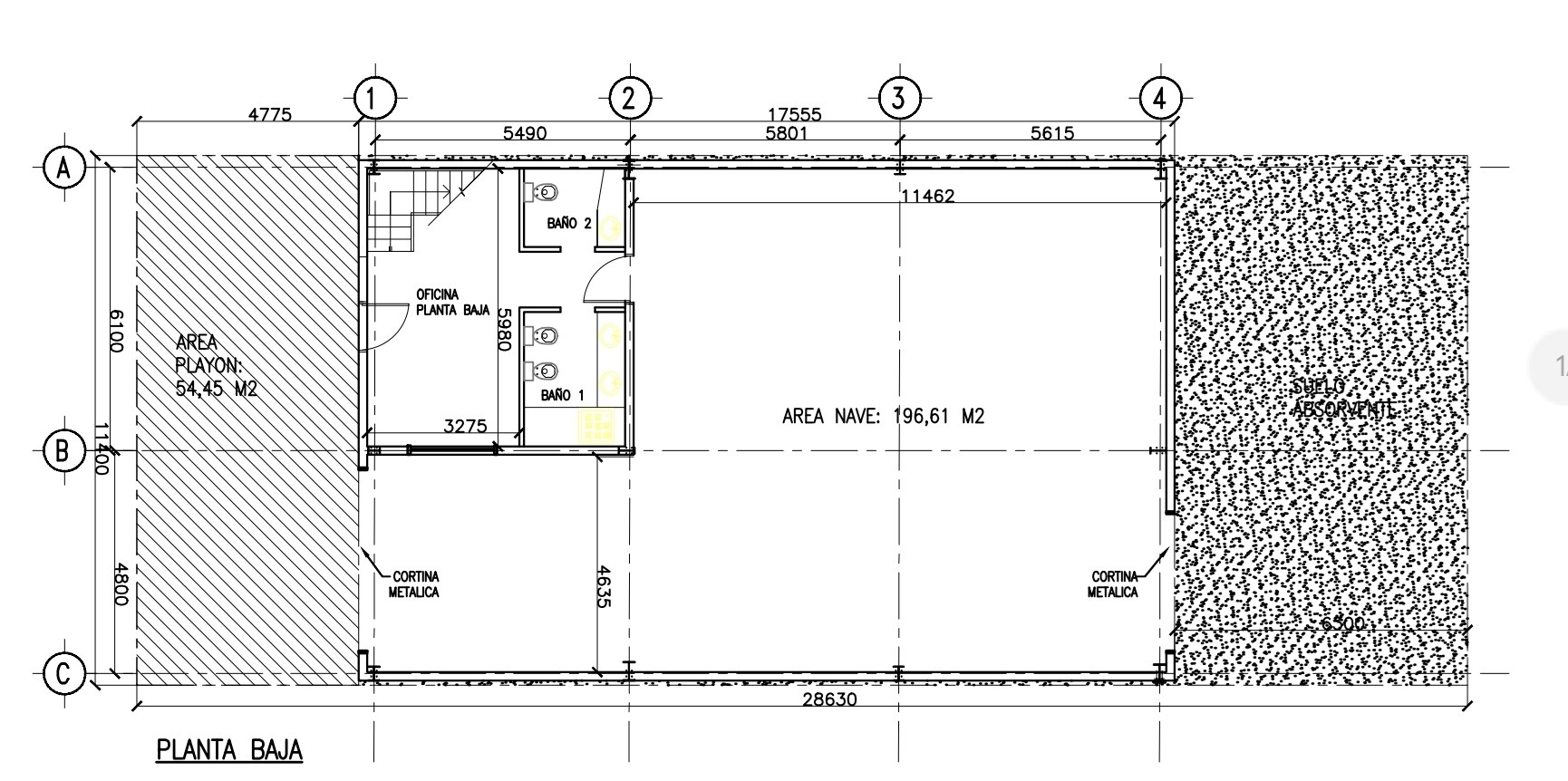
  • Sup. Total 290,00 m2
  • Sup. Cubierta 193,00 m2
  • Sup. Oficina 63,00 m2
  • Sup. Planta 54,00 m2

U$S 3.500

ALQUILER

Colectora Panamericana Este 3300

Ricardo Rojas

Nave industrial en alquiler Ubicación estratégica | Ideal logística, depósitos y operaciones comerciales Excelente nave industrial ubicada en uno de los polos industriales y logísticos más buscados por su rápida conexión con Panamericana y principales arterias de acceso. La propiedad cuenta con una superficie total de 290,6 m² cubiertos, distribuidos de manera funcional: 192,6 m² de nave a piso, ideales para depósito, producción o logística. 35 m² de entrepiso técnico, preparado para soportar una sobrecarga de hasta 350 kg/m², ideal para almacenamiento o uso operativo. 63 m² de oficinas, perfectas para área administrativa, showroom o atención comercial. Implantada sobre un lote de aproximadamente 343,20 m², la nave ofrece: Playa frontal de maniobras. Acceso por cortina metálica de 5 x 5 m, apta para ingreso de camiones. Patio posterior con salida por puerta de doble hoja, aportando mayor operatividad y circulación interna. Importante: el puente grúa de la foto fue retirado. Una propiedad ideal para empresas que buscan ubicación estratégica, funcionalidad y excelente accesibilidad dentro del corredor industrial de Pilar. CMCPSI6421 YS


ADICIONALES

Cloacas
Agua Corriente

*Las descripciones arquitectónicas, valores de expensas, impuestos o servicios, fotos y medidas de las propiedades son aproximados. Los datos fueron proporcionados por el propietario y pueden no estar actualizados a la hora de la visualización de este aviso por lo cual pueden arrojar inexactitudes o discordancias con las que surjan de los las facturas, títulos o planos legales del inmueble. Se pondrá a disposición del interesado la documentación necesaria a fin de realizar las verificaciones respectivas previamente a la realización de cualquier operación, requiriendo por sí o sus profesionales la documentación que corresponda.

CONTACTO





Solicitá tu tasación !

Nuestro compromiso es acompañarte y brindarte todo lo necesario para lograr tu objetivo.

Yanina Scafuro Real Estate - COPYRIGHT 2026

Desarrollado por TecnoGestión Sistemas